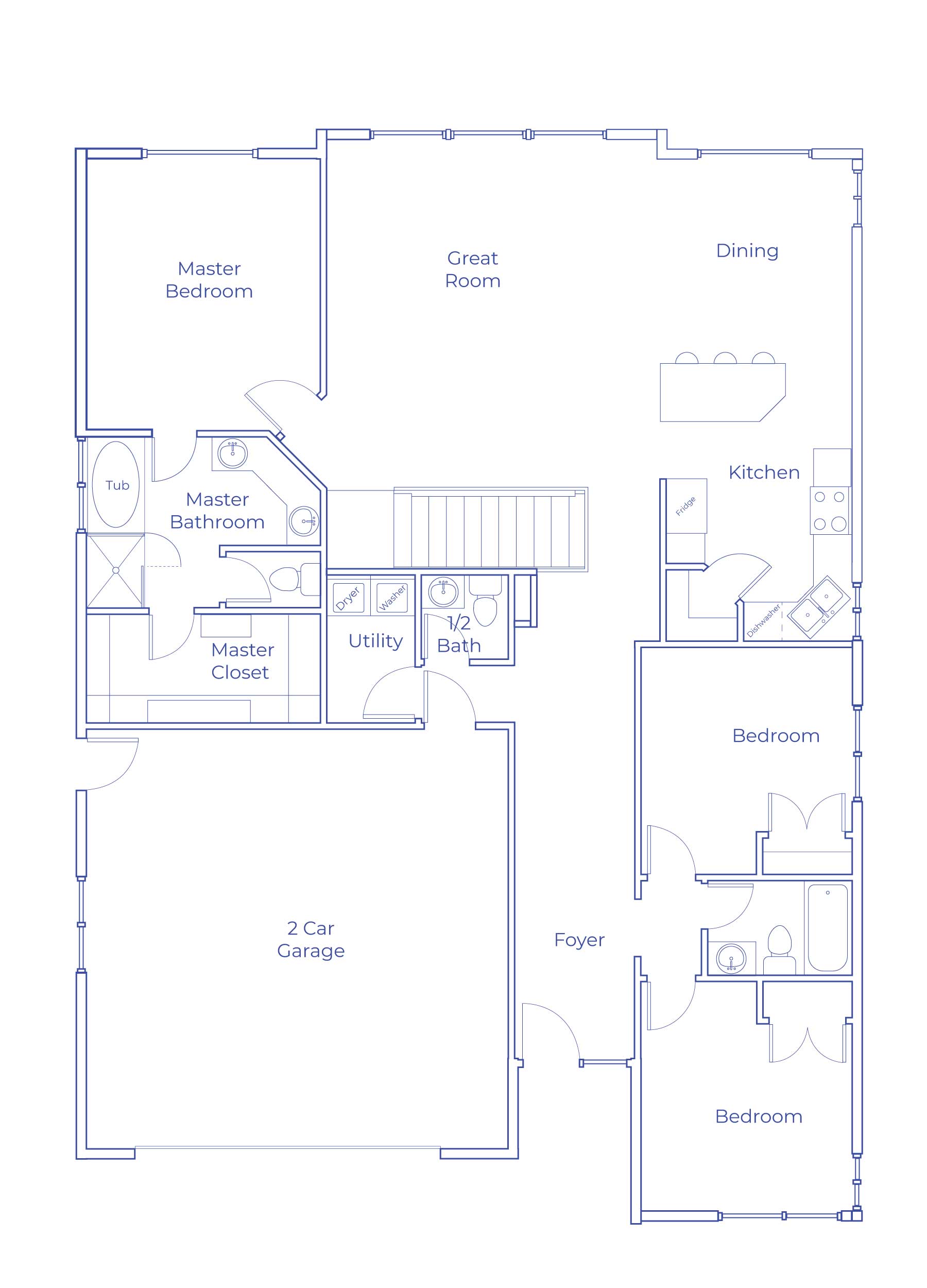
Hunter Meadows 
Rambler Floorplan #1 
 Next Level Homes
	
	
					Floor Plan: MEADOW #1
3 Beds | 2.5 Baths
2 Car Garage
Unfinished Basement
Total 3,400 sq. ft.
First floor 1,700 sq. ft., Basement 1,700 sq. ft.
					
					
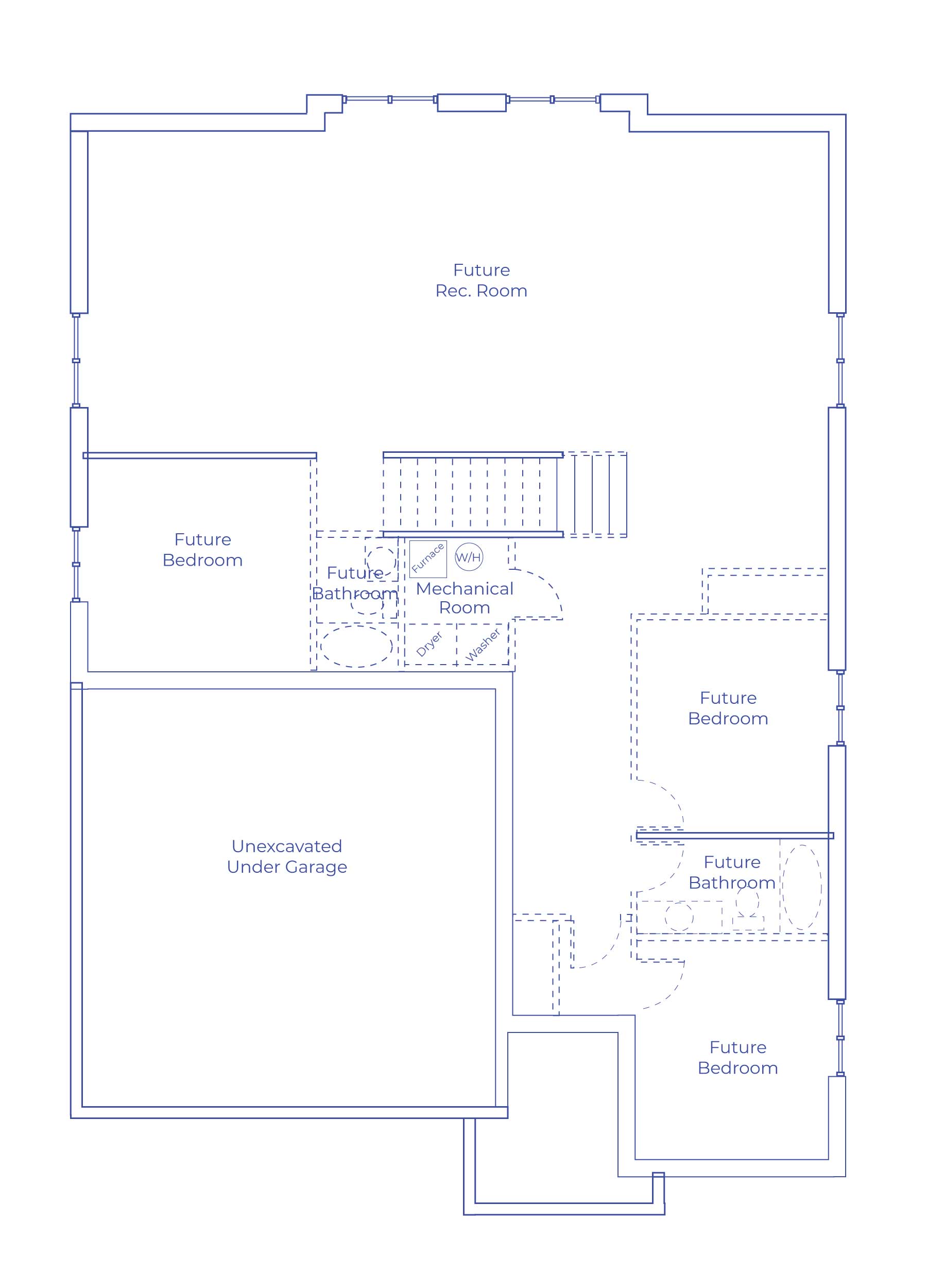
					3 Beds | 2.5 Baths
2 Car Garage
Unfinished Basement
Total 3,400 sq. ft.
First floor 1,700 sq. ft., Basement 1,700 sq. ft.